【完成見学会】共働きご夫婦の優しいお家
開催日
5月1日(水)~6月16日(日)
開催場所
岐阜県高山市丹生川町
【KO-KEN HOME DESIGNは無理な営業は致しません。】
ご不安やお悩み、気軽に相談できる人でありたいと思っております。営業電話や自宅訪問はございませんので、お気軽にご参加下さい。


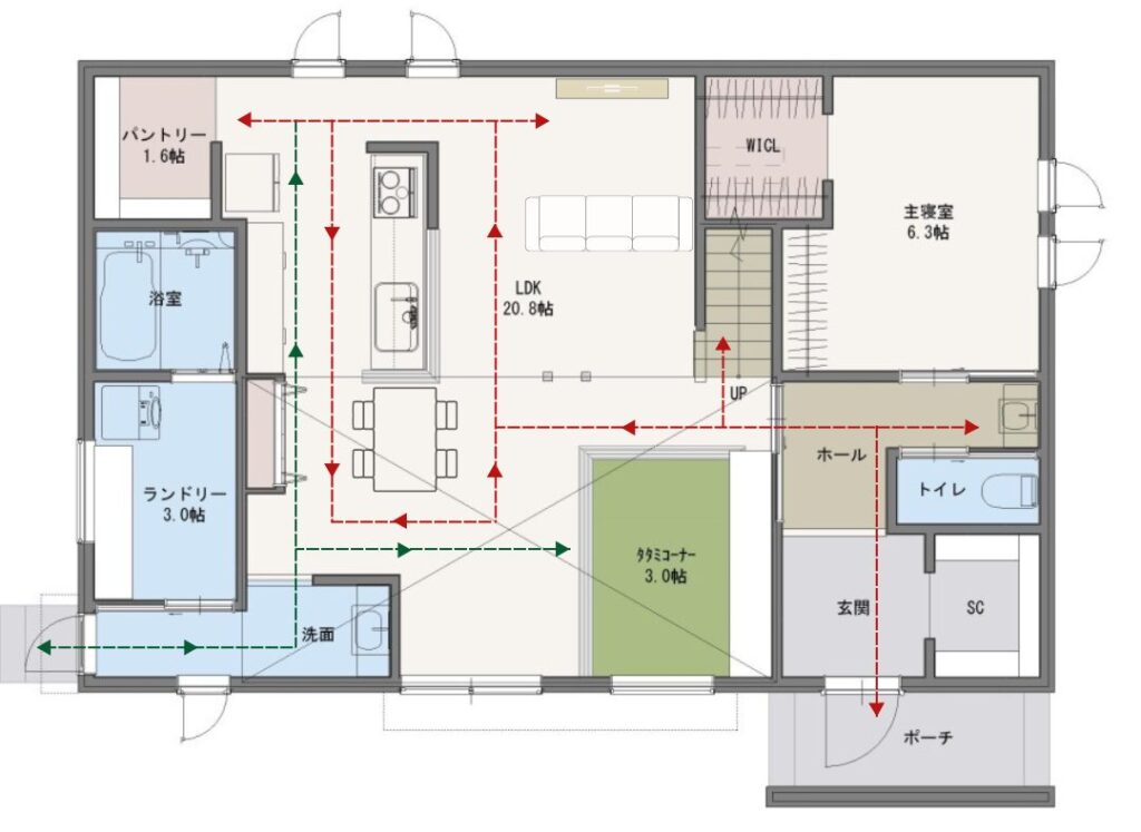
37坪 4LDK収納たっぷりのお家
\見学会の見ドコロ/
■見ドコロ① 開放感のある間取り

・天井に傾斜をつけ床から天井までの空間をめいっぱい使用しLDKを広くとった開放感のある空間。
・圧迫感ない明るいお部屋は、のびのびとゆっくり過ごせる心地よい家族の大切な居場所。
■見ドコロ② 家事動線

・回遊動線のあるダイニングキッチンは、テーブルを隣にして、配膳や片づけをスムーズに。
・ご家族や友人とキッチンを囲み調理を楽しむ事ができる設計。
・トマト農家で働くご主人が勝手口から帰宅後、脱衣室で作業着を脱ぎ洗面に直ぐ行けるよう造作洗面台を2つ設置。
■見ドコロ③ 高品質でシンプルなデザイン

・白を基調とした内装は、1階に塗り壁を採用。
・床やキッチンの扉、各部屋の収納棚を木目調にする事で無印良品の家のようにシンプルで落ち着いたナチュラルなデザイン。
・高山市は寒冷地で非常に寒くなりやすい為、冷凍冷蔵・食品・医薬・物流倉庫などで使用される断熱パネルを基礎に設置。
・耐震もとりながら断熱・気密性をアップした高品質な住まい。
共働きご夫婦のこだわったポイント
POINT.01
全体的に明るい木の色で統一感のある空間
奥様、ご主人ともに好きな色が白色だったので、キッチンや棚全て木目調で作成

POINT.02
ご夫婦がこだわった1階の珊瑚礁の塗り壁
見学会に何度か足を運びその時から、雰囲気が好きで塗り壁にすると決めていた。

POINT.03
読書好きのための魅せる収納スペース
奥様が漫画収納できる見せる棚を2階廊下に設置。

POINT.04
料理や配膳が楽になる中央キッチンの動線
キッチンを真ん中に設置する事で回遊動線がラクラク♪配膳のしやすさも考えた横並びにダイニングテーブル。

\こんな方にオススメ/
白と木目調を活かした4LDKのナチュラルな住まい。休日に家族がゆっくりとのびのび暮らせるように、広く開放感のある空間を設計。また、毎日の生活を快適に過ごせるように勝手口の設置や造作洗面台を2つ設置し、動線は共働きご夫婦のタイパを考えた間取りとなっています。
「いつかはマイホームを建てたいけどまだまだ先かな・・・」、「自分たちに合った家づくりって?・・・」など、まだ漠然としているお家づくりの不安やお悩みをお持ちの方にオススメしています。
■ 新築を考えているけど、注文住宅にするか迷っている方
■ 他社と検討中だけど、家を比較して確認してみたい方
■ 今すぐ建てる予定はないけれど、今後の参考にしてみたい方
■ 具体的なエリアは決めてないけど、岐阜県で家を探している方
■ 実家を建て替えて、新築を検討している方
家づくりの「疑問」や「不安」など私たちにお聞かせください。

\参加特典/
★QUOカード1,000円プレゼント

\KO-KEN HOME DESIGN と創る家/
下呂市にある地域密着の建築会社住まいのトータルアドバイザーです。【家づくり相談会】や【家づくり講座】を通して、大工でもあり設計士でもある、代表の古田をはじめ、家づくりアドバイザーやコーディネーターがご家族の理想のお家づくりをサポートします。

イベント情報
| 日程 | 5月1日(水) ~6月16日(日) |
|---|---|
| 時間 | 10:00~16:00 ※お時間を区切らせていただき1組ずつのご予約と致します。 |
| 場所 | 岐阜県高山市丹生川町 ※詳細はご予約が完了後お送りさせていただきます。 |
| 備考 | ■ご予約方法のご案内 ①お電話でのお申込み TEL : 0576-20-4497 ②WEB申込 下記よりお申込みください。 ■特典のご案内 QUOカード1,000円分をもれなくプレゼント! |
